Ukens bolig

Nybygg - Rekkehus ved La Serena Golf i Los Alcázares

Soverom: 3
Bad: 2
Bruksareal: 110 m²
Terrasse: 47 m²
Tilstand: Nybygg
Byggeår: 2025-26

Avstand Alicante flyplass: 90 km
Avstand strand: 600m
Avstand golf: like ved

Pris: 357.000 €
Ref: N9307

Beliggenhet

Bo i idylliske omgivelser ved La Serena Golf i Los Alcázares – der sol, sjø og golf møtes. Nyt grønne fairways, rolige gater og kort vei til Mar Menor-stranden, restauranter og alle fasiliteter. Et perfekt sted for deg som søker ekte middelhavsliv.

Los Alcázares byr på ekte spansk kystliv med vakre strender, livlige strandpromenader og et stort utvalg av restauranter og butikker. Med over 300 soldager i året og nærhet til golfbaner, flyplass og kulturbyen Cartagena, er dette et ideelt sted å bo eller feriere.

Om boligen

Nybygg – Rekkehus ved La Serena Golf – Los Alcázares

Førsteklasses beliggenhet mellom golfbanen og havet

Oppdag et eksklusivt boligprosjekt med 31 moderne rekkehus ved La Serena Golf i Los Alcázares – kun 600 meter fra Mar Menor. Her bor du i hjertet av Costa Cálida, omgitt av golfbaner, strender og ekte middelhavsstemning.
Med alle fasiliteter i nærheten og utmerkede veiforbindelser er dette et ideelt sted – enten du ønsker et feriested, en helårsbolig eller en trygg investering.

Moderne design med privat basseng og takterrasse

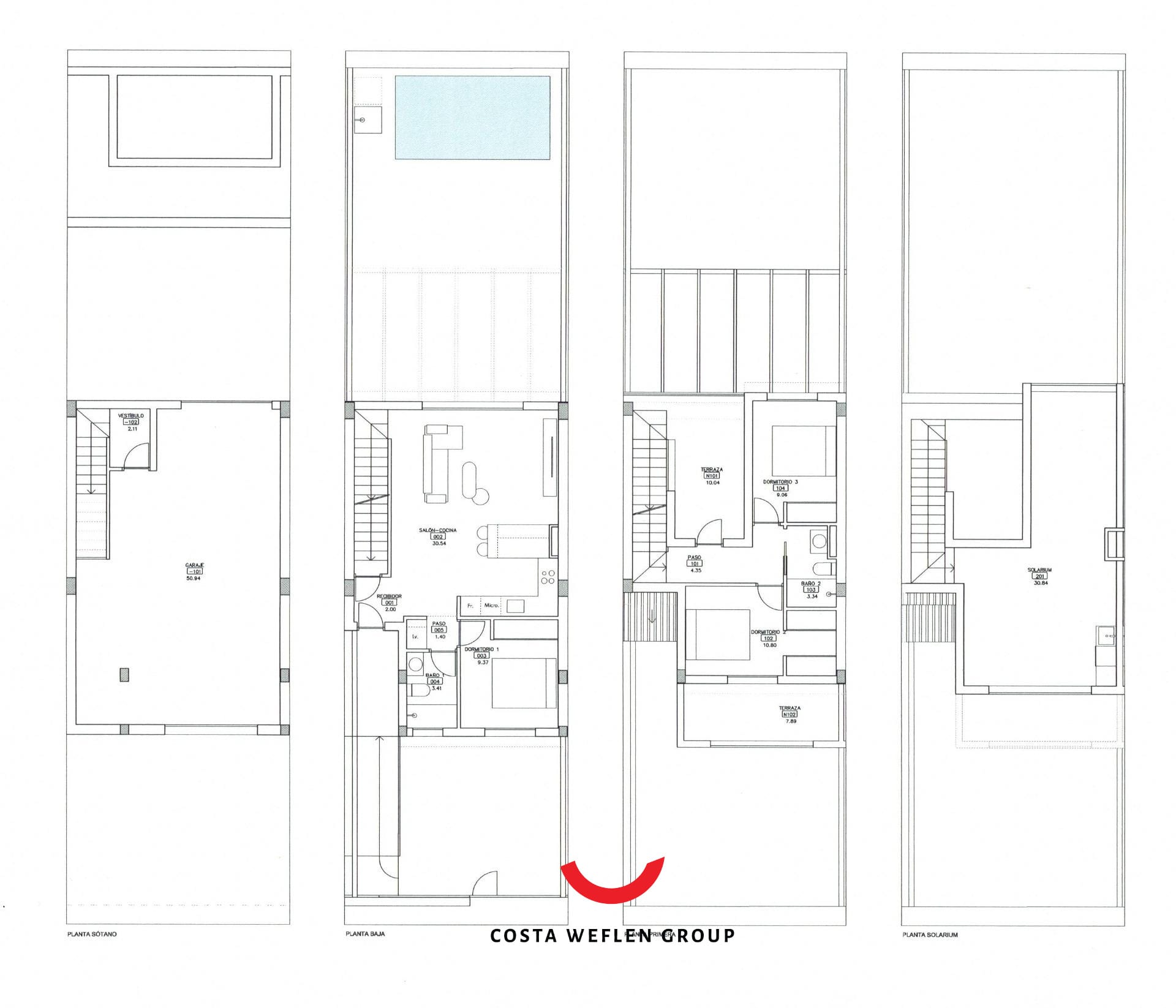
Hver bolig er designet med rene linjer, store vindusflater og lyse, åpne rom. Boligene strekker seg over tre etasjer pluss taksolarium, og byr på maksimal komfort og privatliv:

  • Kjeller: Privat garasje med plass til to biler og direkte adkomst til uteplass

  • Første etasje: Åpen stue- og kjøkkenløsning med utgang til hage og privat basseng, 1 soverom og 1 bad

  • Andre etasje: 2 soverom, 1 bad og 2 terrasser

  • Takterrasse: Egen takterrasse med sommerkjøkken – perfekt for å slappe av og nyte utsikten

Boligene har øst- og vestvendt beliggenhet, noe som gir fantastisk lys og optimale solforhold hele dagen.

Kvalitet i hver detalj

Rekkehusene bygges etter de høyeste standarder og leveres med førsteklasses spesifikasjoner:

  • Privat svømmebasseng

  • Kjellergarasje for 2 biler med motorisert port

  • Aerotermisk system for varmtvann

  • Fullt installert klimaanlegg

  • Møblert og utstyrt kjøkken

  • Komplette bad med møbler, speil og dusjvegger

  • Sikkerhetsdør

Bo mellom havet og golfbanen

Prosjektet ligger i et rolig og grønt område rett ved Serena Golf, en 18-hulls mesterskapsbane omgitt av natur og små innsjøer.
Kun noen minutter unna finner du Mar Menor, kjent for sitt varme, grunne vann – ideelt for svømming, seiling, paddleboarding og kajakkpadling året rundt.

Avstander

  • Mar Menor-stranden: 600 m

  • La Serena Golf: rett ved komplekset

  • Los Alcázares sentrum: 2 km

  • Cartagena: 22 km

  • Murcia by: 40 km

  • Murcia flyplass: 30 km

  • Alicante flyplass: 90 km

Et liv i middelhavsstil

Disse nye rekkehusene kombinerer luksus, komfort og kystliv på sitt beste.
Enten du søker et permanent hjem, et ferieparadis eller en attraktiv investering, finner du det her ved La Serena Golf.

Kontakt oss i dag for mer informasjon eller for å avtale visning – og sikre deg din plass i solfylte Los Alcázares.

Den komplette oppføringen (norsk) med alle bilder ligger på vårt internasjonale nettsted her.

Ønsker du mer informasjon om eller har spørsmål knyttet til ukens bolig?  

Legg inn spørsmål via kontaktskjemaet du finner her. Angi referansenummeret angitt oppe til høyre for spørsmål relatert til dette objektet.

Ønsker du å få relevant informasjon knyttet til det å kjøpe av bolig i Spania, utviklingen i eiendomsmarkedet og andre forhold av knyttet til feriebolig i Spania?  

Da kan du melde deg på vårt nyhetsbrev som får en frekvens på ca. 4-6 ggr/år. Du finner påmelding denne siden.